久喜市本町10期全3棟 1号棟

3,899万円

埼玉県久喜市本町6丁目

東北本線「久喜」駅徒歩15分

東北本線「東鷲宮」駅徒歩34分

東北本線「久喜」駅徒歩17分

価格
3,899万円
間取り/建物面積
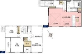
3LDK/102.29㎡
所在地
埼玉県久喜市本町6丁目
築年
2025年9月(新築)
駐車
交通

東北本線久喜」駅 徒歩15分

東北本線東鷲宮」駅 徒歩34分

東北本線久喜」駅 徒歩17分車4分 1.3km

久喜市本町10期全3棟 1号棟の基本情報

物件名
久喜市本町10期全3棟 1号棟
価格
3,899万円
建物面積
102.29㎡
土地面積
34.07坪(112.64㎡)
築年月
2025年9月(新築)
総戸数
-
所在地
埼玉県久喜市本町6丁目
交通

東北本線久喜」駅 徒歩15分

東北本線東鷲宮」駅 徒歩34分

東北本線久喜」駅 徒歩17分車4分 1.3km

久喜市本町10期全3棟 1号棟の詳細情報

設備条件
  • 駐輪場
設備(その他)
    -
駐車場/月額
有/ 並列2台駐車可能。
土地権利
所有権
国土法届出
不要
用途地域
第二種中高層住居専用
取引態様
仲介
引渡し
2025年10月下旬
備考
気になるイチオシ物件情報:「久喜市本町10期全3棟 1号棟」。久喜市立久喜中学校まで519m以内の物件です。駅から徒歩15分の物件です。初めてのマイホームに新築戸建てはいかがでしょうか。こちらの物件に関しての詳細情報や、久喜市の住環境について気になるのであれば、お気軽にお問い合わせください。当社スタッフがしっかりとお答えいたします。

久喜市本町10期全3棟 1号棟のコメント(おすすめポイント)

久喜市周辺にある物件をお求めの方は「久喜市本町10期全3棟 1号棟」はいかがでしょうか。こちらの物件は久喜市立本町小学校が555m以内にあります。駅から徒歩15分に位置する物件です。多くの方からこだわり条件でいただく新築戸建ての物件です。不動産の購入は人生の中でも大きなお買い物だと言われています。そんな大きなお買い物で失敗しないためにも、購入をお考えの際は不動産のプロである当社スタッフにお任せください。

久喜市本町10期全3棟 1号棟で募集中の物件

  1. 30.94坪 (102.29㎡)

    3,899万円(129.25万円/坪)

周辺施設

  • はるみ保育園の画像

    保育園

    はるみ保育園

    421m(6分)

  • 久喜市立本町小学校の画像

    小学校

    久喜市立本町小学校

    555m(7分)

  • 学校法人久喜幼稚園の画像

    幼稚園

    学校法人久喜幼稚園

    689m(9分)

  • イトーヨーカドー 久喜店の画像

    スーパー

    イトーヨーカドー 久喜店

    1083m(14分)

近隣の物件

  1. 久喜市野久喜

    2LDK (95.64㎡)

    3,380万円

  2. 久喜市吉羽3丁目

    3LDK (88.30㎡)

    3,490万円

  3. 久喜市本町6丁目

    3LDK (97.05㎡)

    4,099万円

  4. 久喜市青葉3丁目

    4LDK (100.19㎡)

    3,199万円

久喜市本町10期全3棟 1号棟

お気軽にお問い合わせください

LINEからお問い合わせ 無料お問い合わせ

さいたま土地と住まいの相談窓口 NEXTplus

0120-655-620

10:00~18:00

(休:水曜日(祝日を除く))