洋伸大宮マンション

2,180万円

埼玉県さいたま市大宮区三橋1丁目610-1

京浜東北線「大宮」駅バス14分西武バス「三橋一丁目」停歩4分

川越線「西大宮」駅バス10分西武バス「三橋一丁目」停歩5分

東武野田線「北大宮」駅徒歩37分

価格
2,180万円
間取り/面積
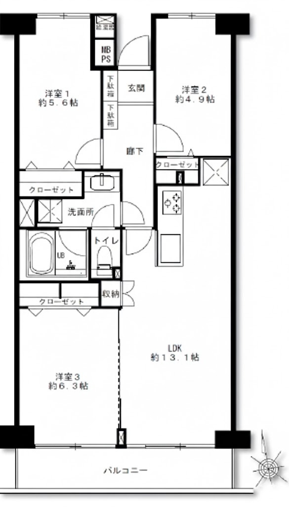
3LDK/65.33㎡
所在地
埼玉県さいたま市大宮区三橋1丁目610-1
築年
1983年6月(築42年)
駐車
空有
交通

京浜東北線大宮」駅 バス14分 西武バス「三橋一丁目」 停歩4分

川越線西大宮」駅 バス10分 西武バス「三橋一丁目」 停歩5分

東武野田線北大宮」駅 徒歩37分

洋伸大宮マンションの基本情報

物件名
洋伸大宮マンション
価格
2,180万円
築年月
1983年6月(築42年)
総戸数
123戸
所在地
埼玉県さいたま市大宮区三橋1丁目610-1
交通

京浜東北線大宮」駅 バス14分 西武バス「三橋一丁目」 停歩4分

川越線西大宮」駅 バス10分 西武バス「三橋一丁目」 停歩5分

東武野田線北大宮」駅 徒歩37分

洋伸大宮マンションの詳細情報

設備条件
  • エレベーター
  • 駐輪場
  • バイク置場あり
  • CATV
  • インターネット対応
設備(その他)
    -
駐車場/月額
空有/5,250円
土地権利
所有権
国土法届出
不要
用途地域
第二種中高層住居専用
戸数
123戸 / 1戸
管理形態
管理会社に全部委託
管理員の勤務形態
日勤
管理会社
日本ハウズイング株式会社
取引態様
仲介
引渡し
即時
備考
徒歩4分の場所にさいたま市立三橋小学校があります。必須条件として挙げる方が多い、エレベーター付きの物件です。こちらは10階建ての建物です。多くの方に好評な、清潔感のある室内が魅力の中古マンションです。当社オススメの不動産情報をお求めになるなら、お電話やメールでのお問い合わせ、又は直接お尋ね下さい。当社がしっかりとサポート致します。

洋伸大宮マンションのコメント(おすすめポイント)

「洋伸大宮マンション」のここがイチオシ。業務スーパー さいたま三橋店まで405mです。必須条件として挙げる方が多い、エレベーター付きの物件です。共有部分も清潔感があり、綺麗な中古マンションです。さいたま市大宮区で不動産をお探しなら、地域に密着した当社にお任せ下さい。信頼と実績を誇る当社は、確かな情報をご提供致します。

洋伸大宮マンションで募集中の物件

  1. 3階

    19.76坪 (65.33㎡)

    2,180万円(110.32万円/坪)

周辺施設

  • さいたま市立三橋小学校の画像

    小学校

    さいたま市立三橋小学校

    297m(4分)

  • 業務スーパー さいたま三橋店の画像

    スーパー

    業務スーパー さいたま三橋店

    405m(6分)

  • 西大宮病院の画像

    総合病院

    西大宮病院

    525m(7分)

  • さいたま市立三橋中学校の画像

    中学校

    さいたま市立三橋中学校

    537m(7分)

  • セブンイレブン さいたま櫛引町1丁目南店の画像

    コンビニエンスストア

    セブンイレブン さいたま櫛引町1丁目南店

    550m(7分)

  • ドラッグストア マツモトキヨシ さいたま櫛引店の画像

    ドラッグストア

    ドラッグストア マツモトキヨシ さいたま櫛引店

    901m(12分)

  • らそ保育園の画像

    保育園

    らそ保育園

    970m(13分)

  • 普門院幼稚園の画像

    幼稚園

    普門院幼稚園

    1294m(17分)

近隣の物件

  1. さいたま市大宮区土手町1丁目

    1DK (38.82㎡)

    2,480万円

  2. さいたま市大宮区大成町1丁目

    3LDK (72.85㎡)

    6,498万円

  3. さいたま市大宮区浅間町1丁目

    2LDK (56.26㎡)

    4,730万円

  4. さいたま市大宮区大門町3丁目

    4LDK (96.72㎡)

    9,750万円

よく見られている物件

  1. 上尾市西宮下2丁目

    3LDK (63.21㎡)

    1,980万円

  2. さいたま市西区大字指扇

    1LDK+2S(納戸) (70.11㎡)

    2,490万円

  3. さいたま市大宮区堀の内町1丁目

    3LDK (63.00㎡)

    2,290万円

  4. 白岡市新白岡2丁目

    4LDK (88.58㎡)

    3,299万円

洋伸大宮マンション

お気軽にお問い合わせください

LINEからお問い合わせ 無料お問い合わせ

さいたま土地と住まいの相談窓口 NEXTplus

0120-655-620

10:00~18:00

(休:水曜日(祝日を除く))