北足立郡伊奈町20期 2号棟

3,499万円

埼玉県北足立郡伊奈町本町2丁目

埼玉新都市交通ニューシャトル「志久」駅徒歩17分

埼玉新都市交通ニューシャトル「伊奈中央」駅徒歩22分

埼玉新都市交通ニューシャトル「丸山」駅徒歩28分

価格
3,499万円
間取り
4LDK
土地面積
129.75㎡
所在地
埼玉県北足立郡伊奈町本町2丁目
交通

埼玉新都市交通ニューシャトル志久」駅 徒歩17分

埼玉新都市交通ニューシャトル伊奈中央」駅 徒歩22分

埼玉新都市交通ニューシャトル丸山」駅 徒歩28分

建物面積
104.13㎡
築年月
2025年12月(予定)

物件の特徴

  • 室内洗濯機置場

  • TVモニタ付きインターホン

  • カウンターキッチン

  • 浴室乾燥機

セールスポイント

小学校が十分通学できる範囲にあります。小室小学校が徒歩11分です。鞄や靴なども収納可能なウォークインクロゼットです。綺麗で清潔感のある室内が新築戸建ての特徴です。モニターから顔が見えるTVインターホン付きです。不動産について何かご不明な点などがございましたら、北足立郡伊奈町に強い当社スタッフへとお問い合わせください。しっかりとお応え致します。

ポイント

システムキッチン ウォークインクロゼット バルコニー ファミリー向け 浴室乾燥機

担当者のコメント

石川 紗枝

ぜひ一度見ていただきたい、「北足立郡伊奈町20期 2号棟」です。日常生活で利用頻度の高い水回りだからこそ、使い勝手のいいシステムキッチンを選んでみませんか。追焚機能のある浴室のでお湯が冷めてしまっても安心ですね。鞄や靴なども収納可能なウォークインクロゼットです。ご希望に沿った一戸建てをご紹介致します。北足立郡伊奈町の埼玉新都市交通ニューシャトル志久付近でマイホームの購入をお考えなら、お気軽にお問い合わせください。

基本情報

販売戸数
-
総戸数
-
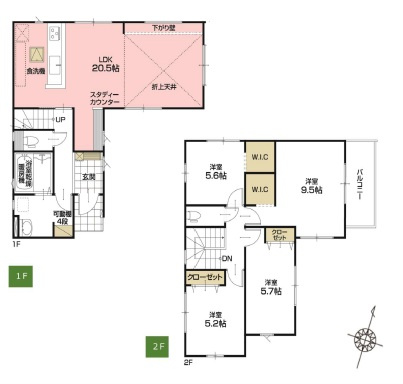
間取り / 詳細
4LDK
LDK 20.5帖/洋室 9.5帖/洋室 5.6帖/洋室 5.2帖/洋室 5.7帖
向き
北東
建物面積(坪数)
104.13㎡(31.49坪)
土地面積(坪数)
129.75㎡(39.24坪)
建ぺい率 /
容積率
60%/200%
築年月
2025年12月(予定)
駐車場 /
月額料金
有 0円
土地権利
所有権
土地
(敷金 / 保証金)
- / -
建物構造
木造 / 2階建
傾斜地部分面積
-
路地状敷地
-
私道負担面積
-
セットバック
高圧線下面積
-
施工会社
ケイアイスター不動産(株)
用途地域
第一種住居
地目 / 地勢
宅地 / -
接道状況
一方(北東 公道 5.0m)
国土法届出要否
不要
都市計画
市街化区域
総区画数 /
販売区画数
-/-
現況
未完成
その他
法令上の制限
景観法/日影制限有/法22条区域。埼玉県景観条例。宅地造成等工事規制区域。道路斜線制限。隣地斜線制限。日影規制(時間4h-2.5h)地盤面から高さ4m
取引態様
仲介
引渡し
2026年1月中旬
取引条件の
有効期限
2025年11月27日

設備条件

設備条件
  • 住宅金融支援機構利用可 / 新婚さん向け / ファミリー向け / 室内洗濯機置場 / フローリング / バルコニー / 都市ガス / 公営水道 / 公共下水 / 電気有 / ガスコンロ / コンロ2口以上 / 食器洗い乾燥機 / システムキッチン / カウンターキッチン / コンロ3口 / 追焚機能浴室 / 浴室乾燥機 / 温水洗浄便座 / 洗髪洗面化粧台 / トイレ2ヶ所 / 浴室1坪以上 / 床下収納 / ウォークインクロゼット / 収納豊富 / TVモニタ付インターホン / 複層ガラス / ディンプルキー
設備(その他)
    -

その他

物件番号
96982992
管理コード
-
建築確認番号
第24UDI1W建06255号
情報更新日
2025年11月13日
次回更新予定日
2025年11月27日
取扱会社
  • さいたま土地と住まいの相談窓口 NEXTplus
  • 埼玉県蓮田市東1丁目1番14号 チュリス蓮田1階
  • TEL:0120-655-620
  • 埼玉県知事 (2) 第023428号
    火災保険取扱代理店
  • 埼玉県宅地建物取引業協会
備考
多くの方に好評の、4LDKの物件情報はこちらです。トイレが2ヶ所にあるので複数人でも快適に暮らせます。新築の戸建て物件です。浴室や洗濯物からスピーディーに湿気を除去してカビを防げる、浴室乾燥機付きの物件です。人生に何度もない不動産購入だからこそ、こだわりを貫いて探したいですよね。当社では数多くの不動産情報を取り扱っております。あなたの不動産探しのお手伝いをさせてください。

周辺施設

  • 尾崎内科クリニックの画像

    総合病院

    尾崎内科クリニック

    430m(6分)

  • ギガパール 伊奈店の画像

    スーパー

    ギガパール 伊奈店

    533m(7分)

  • ミニストップ 伊奈本町店の画像

    コンビニエンスストア

    ミニストップ 伊奈本町店

    550m(7分)

  • きむら伊奈保育園の画像

    保育園

    きむら伊奈保育園

    733m(10分)

  • 小室小学校の画像

    小学校

    小室小学校

    870m(11分)

  • 伊奈はなぞの幼稚園の画像

    幼稚園

    伊奈はなぞの幼稚園

    1149m(15分)

  • 伊奈中学校の画像

    中学校

    伊奈中学校

    1155m(15分)

  • ドラッグセイムス伊奈中央店の画像

    ドラッグストア

    ドラッグセイムス伊奈中央店

    1923m(25分)

支払いシミュレーション

月々の支払額
9.6
購入希望物件価格
万円
頭金
万円
金利
%
返済額(ボーナス1回分)
万円
返済期間

※ボーナスは自動で年2回分で計算されます。

近隣の物件

  1. 伊奈町小室1250番

    北足立郡伊奈町大字小室

    4LDK (99.46㎡)

    2,790万円

  2. 伊奈町栄四丁目76番全1棟

    北足立郡伊奈町栄4丁目

    3LDK (69.97㎡)

    2,590万円

  3. 西小針1丁目131番全6棟 B号棟

    北足立郡伊奈町西小針1丁目

    4LDK (94.40㎡)

    2,790万円

  4. 北足立郡伊奈町22期全1棟 1号棟

    北足立郡伊奈町大字小室

    4SLDK (108.27㎡)

    4,398万円

北足立郡伊奈町20期 2号棟

北足立郡伊奈町20期 2号棟

3,499万円

-

4LDK(104.13㎡)

お気軽にお問い合わせください

LINEからお問い合わせ 無料お問い合わせ

さいたま土地と住まいの相談窓口 NEXTplus

0120-655-620

10:00~18:00

(休:水曜日(祝日を除く))